Domingo, 2023,
Barcelona,Es
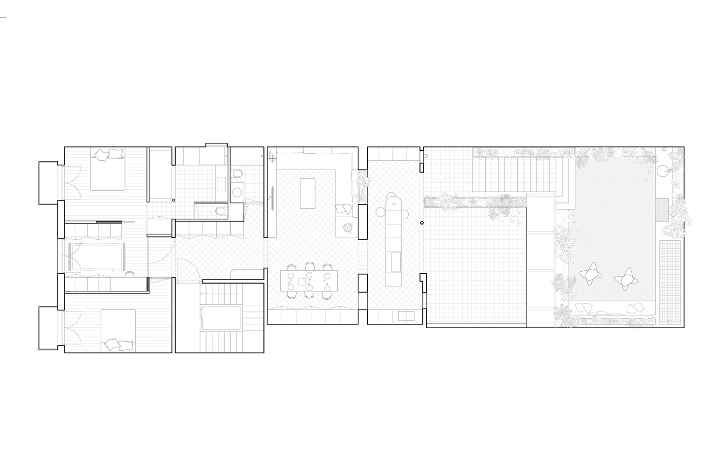
This residence, located in Eixample district, has been mistreated over time. Materiality and origin morphology are not recognized. It is a gloomy space, with a chaotic distribution modified by previous users. We discover a courtyard at a lower level, detached completely from the living space, accessible through a narrow ladder. The project begins in situ, removing the added layers, rediscovering the site instance and the hidden elements, seeking to retrieve the light.
The process involved uncovering the original cast-iron pillar hidden between later-built masonry walls. In our quest to regain natural light, we removed the added layers and restored the original glassed gallery.
Fantasy room:
Designed as a suite, the fantasy room combines the materiality of marble wood and mirrors. A green marbled wall separates the bedroom area from the bathroom, enabling the creation of different atmospheres, playing with reflections, steam, and materiality.
The Central Hub
The kitchen and dining area is the center of the residence, where the furniture seamlessly adapts to the original floor plan’s morphology. A narrow, elongated kitchen island benefits from the new gallery, providing an intimate connection to the garden through the glass façade. The flooring aims to reclaim its original materiality with traditional hydraulic tiles, reinterpreting a contemporary design.
A larger, more comfortable staircase connects the lively living space to the garden, bridging these two contrasting yet harmonious areas.
Garden of Silence
The project transforms the courtyard into a 'Garden of Silence.' This peaceful oasis serves as a haven of calm, offering a break from the noisy city environment and traffic."
Type: House/Renovation Status: Built Size: 180 m2 Photography: Del Rio Bani























