LL731, 2024-2025,
Barcelona,Es
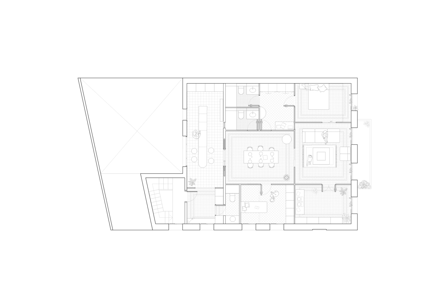
The Casa Jaume Bach Esteve, located in the Poblenou neighborhood and built in 1903 by Raimon Batlle i Magañas, was originally composed of two apartments. The renovation project, guided by a deep respect for the original architecture, reimagines the building as a single-family home with a work space on the ground floor and a living area on the upper floor. The project is conceived as a continuity of rooms that generate a flexible space, where the furniture arrangement defines the use of each area.
The intervention adds a new layer to the existing structure through a series of furniture pieces and elements that give the space a new meaning. The intervention contrasts with the pre-existing structure, establishing a dialogue between old and new, thus enriching the building’s identity with a contemporary language that respects and transforms the memory of the place.
Type: House/Renovation Status: Ongoing Size: 250 m2






















