Penthouse Poblenou, 2024,
 Barcelona,Es
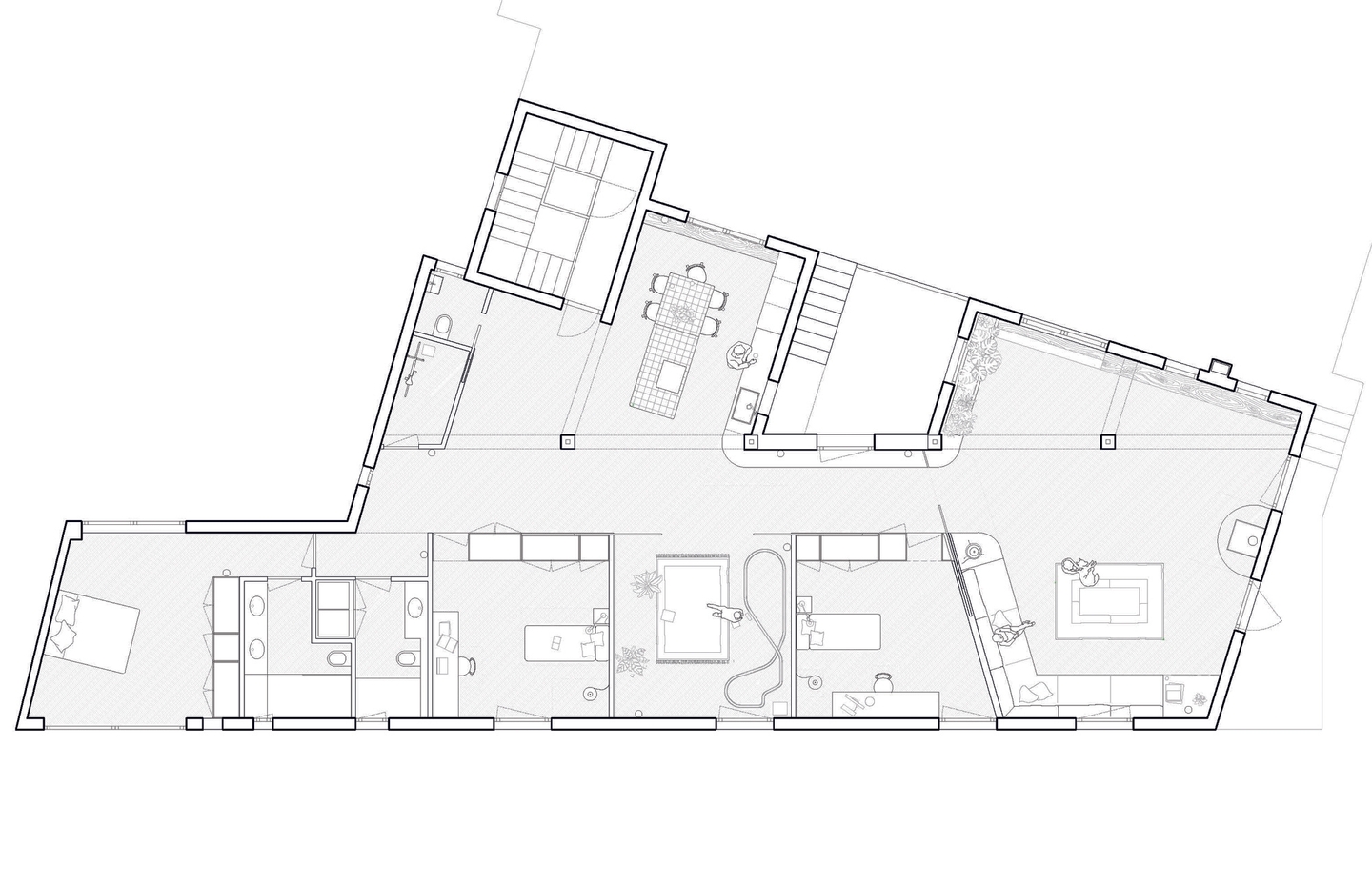
The project is located in the Poblenou district, in an industrial building that has been mistreated by the various transformations undergone over time, turning it into an amalgamation of styles and languages, losing its own identity and blurring its initial character.
We find a large dwelling partitioned, crossed from end to end by a narrow corridor, in which the living spaces were small and poorly connected.
The proposal removes all the successive layers to recover the concrete structure, giving it prominence and using it to shape the new spaces of the dwelling.
A series of staggered living spaces are proposed, allowing for crossed views and long visual connections throughout the dwelling, while each space can have its own autonomy within the whole.
The furniture organizes the new distribution, with pieces folding and contouring the dwelling, becoming steps, benches, furniture, or cabinets.
This new constellation of elements and artifacts emerges, not merely as static fixtures but as dynamic orchestrators of domestic life, they dance within the spaces, reminding us that every corner lies the potential for beauty.
Type: House/Renovation Year: 2022-2023 Status: Built Size: 250 m2 Photography: Del Rio Bani















